Redrock Homes logo
Floor Plans
Liberty floor plan home features

Liberty series

Liberty standard features

Design Options

Liberty standard features

Interior

  • 8’ interior and exterior wall heights with flat ceiling
  • Tape and Textured Drywall Throughout
  • White Interior 6 Panel Passage Doors with Painted Jambs and Casings
  • Hollow Core 6 Panel Wardrobe Doors
  • Linoleum in Kitchen, Utility Room, Baths and Entryway (Per Plan)
  • Silent Wall Switches
  • Designer Light Fixtures
  • Wired and Braced for Ceiling Fans in Living Room & Master Bedroom
  • White Wood Window Cornice With 2” Blinds
  • Square edge countertops
  • Laminate backsplash
  • 8’ interior and exterior wall heights with flat ceiling
  • Tape and Textured Drywall Throughout
  • White Interior 6 Panel Passage Doors with Painted Jambs and Casings
  • Hollow Core 6 Panel Wardrobe Doors
  • Linoleum in Kitchen, Utility Room, Baths and Entryway (Per Plan)
  • Silent Wall Switches
  • Designer Light Fixtures
  • Wired and Braced for Ceiling Fans in Living Room & Master Bedroom
  • White Wood Window Cornice With 2” Blinds
  • Square edge countertops
  • Laminate backsplash

Exterior

  • Distinctive Elevations
  • Durable Painted Siding
  • Fiberglass Shingled Roof
  • 6" Sidewall Roof Eaves and 12" End Wall Overhangs
  • Porch Lights at All Exterior Doors
  • Residential In Swing Front and Rear Doors with Deadbolt
  • Oversized Vinyl Dual Glazed Windows
  • Architectural shingles
  • Distinctive Elevations
  • Durable Painted Siding
  • Fiberglass Shingled Roof
  • 6" Sidewall Roof Eaves and 12" End Wall Overhangs
  • Porch Lights at All Exterior Doors
  • Residential In Swing Front and Rear Doors with Deadbolt
  • Oversized Vinyl Dual Glazed Windows
  • Architectural shingles

Kitchen

  • Custom Cabinets with Solid Wood Doors
  • Nationally Serviced Whirlpool Appliances
  • 30" Free Standing Gas Range
  • Double Door Frost-Free Refrigerator
  • Laminate Kitchen Countertops with Ceramic Tile Backsplash
  • Single Lever Kitchen Faucet with Spray
  • Wired and Plumbed for Washer & Dryer
  • Utility Overhead Shelf over Washer & Dryer Area
  • Stainless steel appliance package
  • One bank of drawers in kitchen, no drawers over doors
  • Custom Cabinets with Solid Wood Doors
  • Nationally Serviced Whirlpool Appliances
  • 30" Free Standing Gas Range
  • Double Door Frost-Free Refrigerator
  • Laminate Kitchen Countertops with Ceramic Tile Backsplash
  • Single Lever Kitchen Faucet with Spray
  • Wired and Plumbed for Washer & Dryer
  • Utility Overhead Shelf over Washer & Dryer Area
  • Stainless steel appliance package
  • One bank of drawers in kitchen, no drawers over doors

Bathroom

  • Water-Saver Toilets
  • Single Lever or Dual Handle Lavatory Faucets
  • Laminate Vanity Countertops with Ceramic Tile Backsplash
  • Towel Bars and Tissue Holders
  • Flat edge mirrors in bathrooms
  • Fiberglass shower stall with glass enclosure in master bath
  • No vanity wall light in bathrooms, recessed can light only
  • No recessed medicine cabinets
  • Water-Saver Toilets
  • Single Lever or Dual Handle Lavatory Faucets
  • Laminate Vanity Countertops with Ceramic Tile Backsplash
  • Towel Bars and Tissue Holders
  • Flat edge mirrors in bathrooms
  • Fiberglass shower stall with glass enclosure in master bath
  • No vanity wall light in bathrooms, recessed can light only
  • No recessed medicine cabinets

Construction

  • 2 x 4 Exterior Walls
  • 7'6" Sidewall Height
  • Nominal 4/12 Roof Pitch with 30 lb. Construction
  • Climate Zone II Insulation with Floors R-22, Walls R-11, and Roof R-25 Minimum
  • 100 Amp Interior Electrical Service Panel
  • 30 Gallon Electric Water Heater
  • Shut Off Valves on all Water Fixtures
  • Down Flow Gas Furnace with Floor Ducts Inside Fully Sealed Basement Cavity
  • No wood window valances
  • 24” on center interior wall studs
  • 2 x 4 Exterior Walls
  • 7'6" Sidewall Height
  • Nominal 4/12 Roof Pitch with 30 lb. Construction
  • Climate Zone II Insulation with Floors R-22, Walls R-11, and Roof R-25 Minimum
  • 100 Amp Interior Electrical Service Panel
  • 30 Gallon Electric Water Heater
  • Shut Off Valves on all Water Fixtures
  • Down Flow Gas Furnace with Floor Ducts Inside Fully Sealed Basement Cavity
  • No wood window valances
  • 24” on center interior wall studs

Other

  • 9' High Ceilings with 42" Overhead Cabinets, 80" Tall Windows, and 8' Tall Front Door
  • Larger Baseboard Moldings
  • Ceiling Cove Molding
  • Rounded Drywall Corners
  • Solid Surface Countertops
  • Full Height Ceramic Tile Backsplash in Kitchen
  • Soft Close Cabinet Hardware for Cabinet Doors and Drawers
  • Upgrade Kitchen Appliances
  • Upgrade Vinyl Floor Tile Replacing Linoleum
  • Skylights and Solar Tubes
  • 2 x 6 Exterior Walls with R-19 Insulation
  • Exterior Roof Dormers
  • 200 Amp Total Electric
  • Overhead Ductwork with Ceiling Registers Replacing Floor Ducts and Floor Registers
  • 9' High Ceilings with 42" Overhead Cabinets, 80" Tall Windows, and 8' Tall Front Door
  • Larger Baseboard Moldings
  • Ceiling Cove Molding
  • Rounded Drywall Corners
  • Solid Surface Countertops
  • Full Height Ceramic Tile Backsplash in Kitchen
  • Soft Close Cabinet Hardware for Cabinet Doors and Drawers
Redrock Homes logo

Redrock Homes

Affordable homes at your fingertips

    Pages

    HomesMapSign upSign in

    Help

    Contact usTerms of ServicePrivacy Policy

    Get started with Redrock Homes

    Find, design, and order your next home in a few clicks.

    Sign up

    Dealer License #:

    Powered by BuildTrove.com

    About Cavco Phoenix


    The Durango Division for Cavco Homes is a leader in Manufactured and Modular Housing in the Southwest. For over 45 years, Cavco Durango has built homes in an environmentally protected plant with skilled and experienced craftsmen that are dedicated to producing a well-built home.


  • Upgrade Kitchen Appliances
  • Upgrade Vinyl Floor Tile Replacing Linoleum
  • Skylights and Solar Tubes
  • 2 x 6 Exterior Walls with R-19 Insulation
  • Exterior Roof Dormers
  • 200 Amp Total Electric
  • Overhead Ductwork with Ceiling Registers Replacing Floor Ducts and Floor Registers
  • By Bedroom

    See homes grouped by bedrooms

    Our Homes

    Cavco

    Champion

    Display Model Homes

    Visit Us
    Get Started
    1. Catalog
    2. Cavco Phoenix
    3. Liberty

    Listed homes

    View all homes
    See More Homes

    750 - 1,200 sq. ft.

    Liberty 16603a floor plan home features

    Liberty 16603a floor plan home features

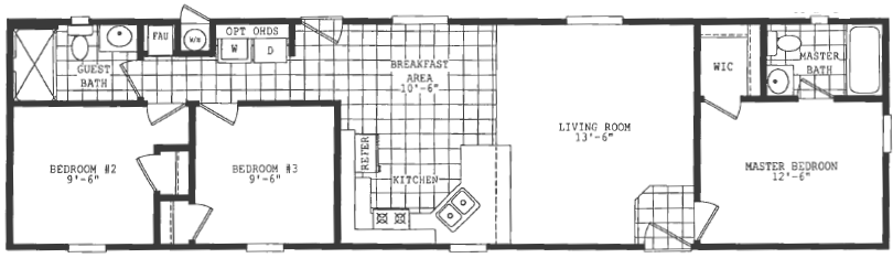
    Liberty 16603A

    $87,900

    3 Bed | 2 Bath | 937 Sq. Ft. | 15' 8" x 60'

    View detailsDesign home
    Liberty 24442a floor plan home features

    Liberty 24442a hero, elevation, and exterior home features

    Liberty 24442A

    $107,900

    2 Bed | 2 Bath | 1,041 Sq. Ft. | 23' 8" x 44'

    View details

    3 bedroom homes

    Liberty 24523a floor plan home features

    Liberty 24523a floor plan home features

    Liberty 24523A

    $120,900

    3 Bed | 2 Bath | 1,230 Sq. Ft. | 23' 8" x 52'

    4 bedroom homes

    Liberty 28604a floor plan home features

    Liberty 28604a floor plan home features

    Liberty 28604A

    $135,900

    4 Bed | 2 Bath | 1,600 Sq. Ft. | 26' 8" x 60'

    Design home
    View detailsDesign home
    Liberty 28523a floor plan home features

    Liberty 28523a floor plan home features

    Liberty 28523A

    $123,900

    3 Bed | 2 Bath | 1,386 Sq. Ft. | 26' 8" x 52'

    View detailsDesign home
    Liberty 28563a floor plan home features

    Liberty 28563a hero, elevation, and exterior home features

    Liberty 28563A

    $131,900

    3 Bed | 2 Bath | 1,493 Sq. Ft. | 26' 8" x 56'

    View detailsDesign home
    View detailsDesign home
    Liberty 28704a floor plan home features

    Liberty 28704a floor plan home features

    Liberty 28704A

    4 Bed | 2 Bath | 1,866 Sq. Ft. | 26' 8" x 70'

    View detailsDesign home